Ficha
POSIBILIDAD DE CAMBIO USO A VIVIENDA – OVIEDO EL CAMPILLIN
Oviedo - REF. 3128

169 m2

2
venta: 184.000 €
Descripción

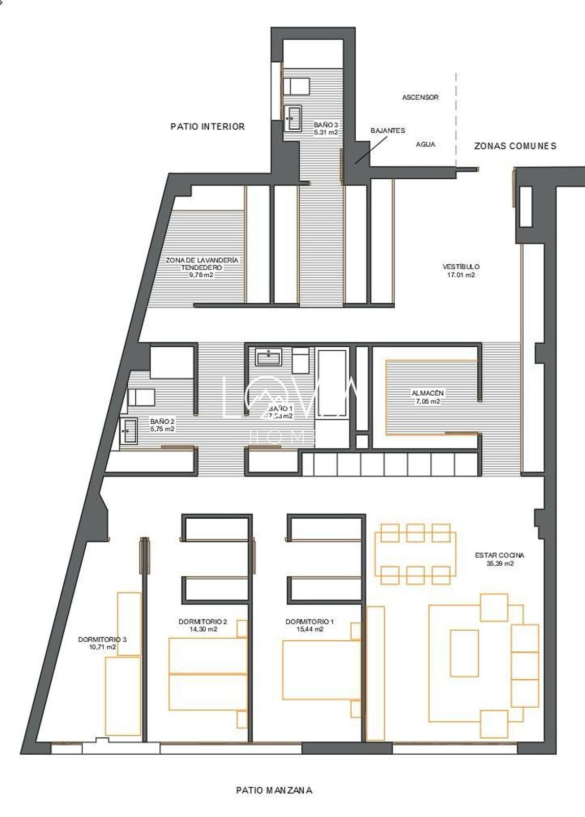
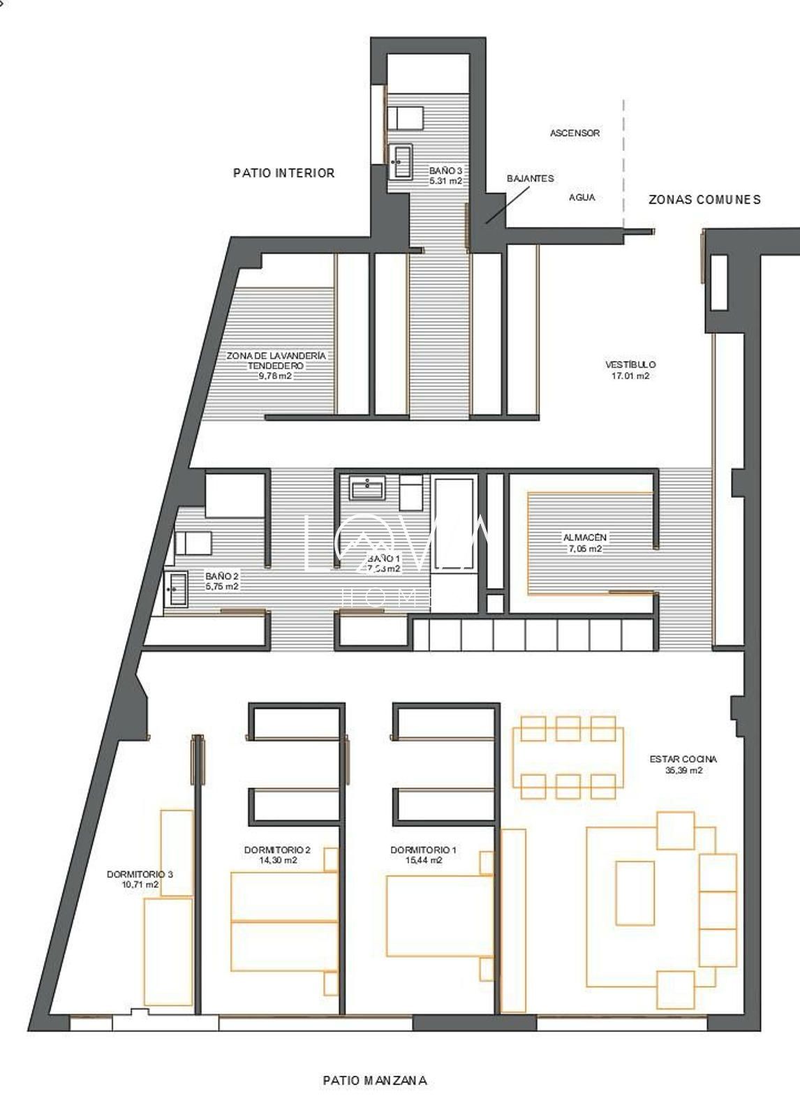
A tan solo cinco minutos a pie del Ayuntamiento de Oviedo, este local en planta entresuelo ofrece una excelente oportunidad de inversión gracias a su posibilidad de cambio de uso a vivienda. Su ubicación céntrica, rodeada de todos los servicios, comercios y zonas administrativas, lo convierte en una opción estratégica tanto para residencia habitual como para proyecto inmobiliario destinado al alquiler. Una de las propuestas permite desarrollar una amplia vivienda familiar con una distribución moderna y funcional. Se puede proyectar un luminoso salón–cocina de 36 m² como eje principal de la vivienda, tres dormitorios de 11, 14 y 15 m², y tres baños completos de aproximadamente 6, 7 y 8 m², aportando comodidad y privacidad. El diseño se completa con un almacén de 7 m² y una lavandería independiente de 10 m², espacios muy valorados que mejoran la organización y el confort diario.

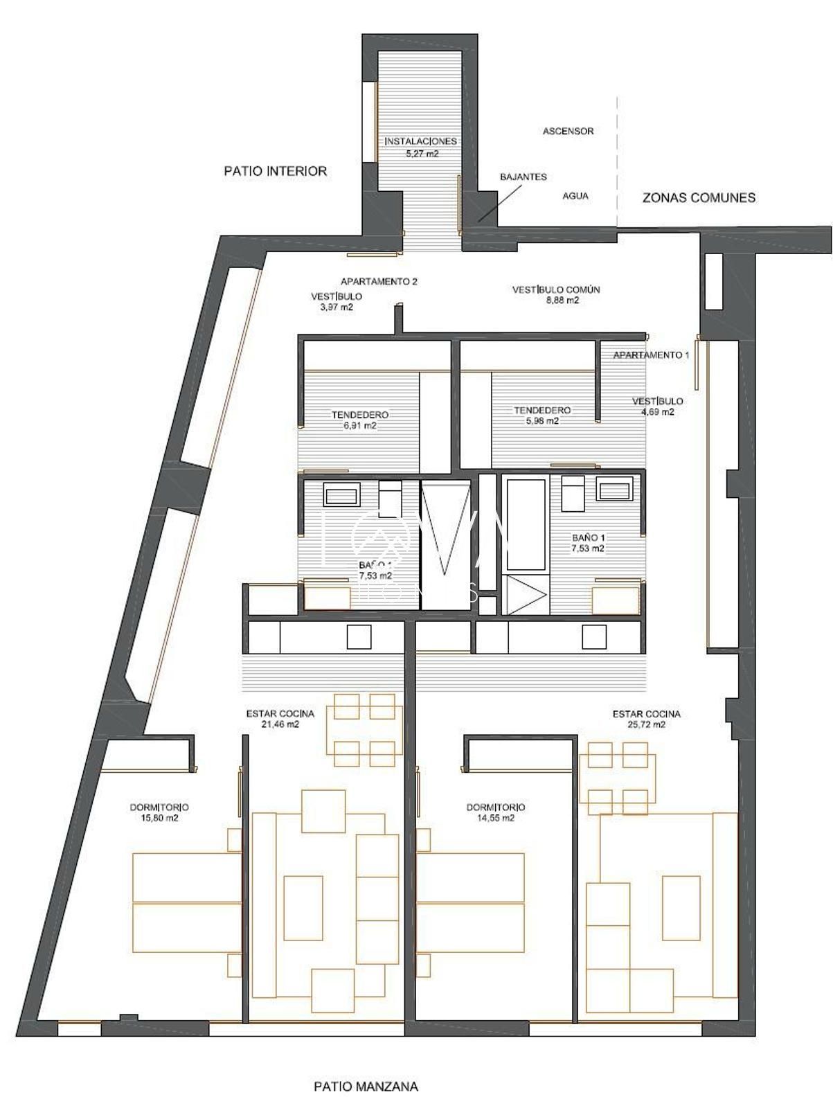
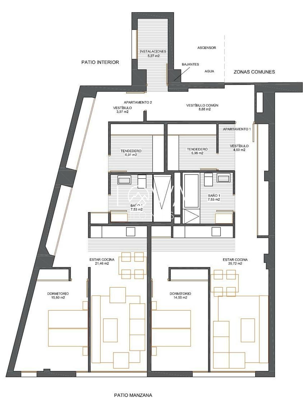
Como alternativa, el inmueble ofrece la posibilidad de dividirse en dos apartamentos independientes, ideales para rentabilizar la inversión. Cada unidad podría contar con un salón–cocina de 26 m², un dormitorio de 15 m², un baño completo de 8 m² y un tendedero de 7 m², configurando espacios amplios y muy atractivos para el mercado del alquiler. Aunque se trata de un inmueble interior, su orientación a un enorme patio de manzana abierto le proporciona una luminosidad sorprendente durante gran parte del día. La amplitud del patio permite la entrada de abundante luz natural, generando estancias claras y agradables, alejadas de la sensación habitual de los espacios interiores. Además, esta ubicación garantiza un ambiente especialmente tranquilo y silencioso, libre del ruido del tráfico y del bullicio de la calle, convirtiéndolo en un lugar ideal tanto para el descanso en caso de vivienda como para el desarrollo de una actividad profesional en un entorno sereno y confortable. En definitiva, una propiedad versátil con doble enfoque: transformarla en una cómoda vivienda familiar o convertirla en un negocio de apartamentos con gran potencial de rentabilidad en el centro de la ciudad.

Características
Precio Venta 184.000 €
Precio/m² 1.089
Gastos de comunidad 43 €
Año de construcción 1963
Construidos 169 m2
Baños 2
Cocina Amueblada
Estado Para reformar
Ascensor
Salida de humos
Calificación Energética (E) VER
Escalas de eficiencia


Eficiencia Emisiones: 66,70
Eficiencia Consumo: 331,70
331,7
66,7

Contáctanos

Si deseas más información sobre esta propiedad, por favor, rellena el formulario.

 Sí, he leído y/o acepto las Condiciones de uso y la Política de privacidad
Inmuebles similares:
 
184.000 €
Ref. 3127  169 m2  2
Local Comercial en venta en Oviedo, con 169 m2, Cocina y Salida de Humos.
 
187.000 €
Ref. 3042  704 m2

Excelente oportunidad, local comercial y subsuelo, en total son 704 m2 construidos, en una ubicación estratégica en Solórzano, un pueblo encantador de Cantabria