Ficha
PISO AMUEBLADO EN CORNELLANA CON PLAZA DE GARAJE Y TRASTERO
Salas - REF. 3033

99 m2

3

2

1

3
venta: 125.000 €
Descripción

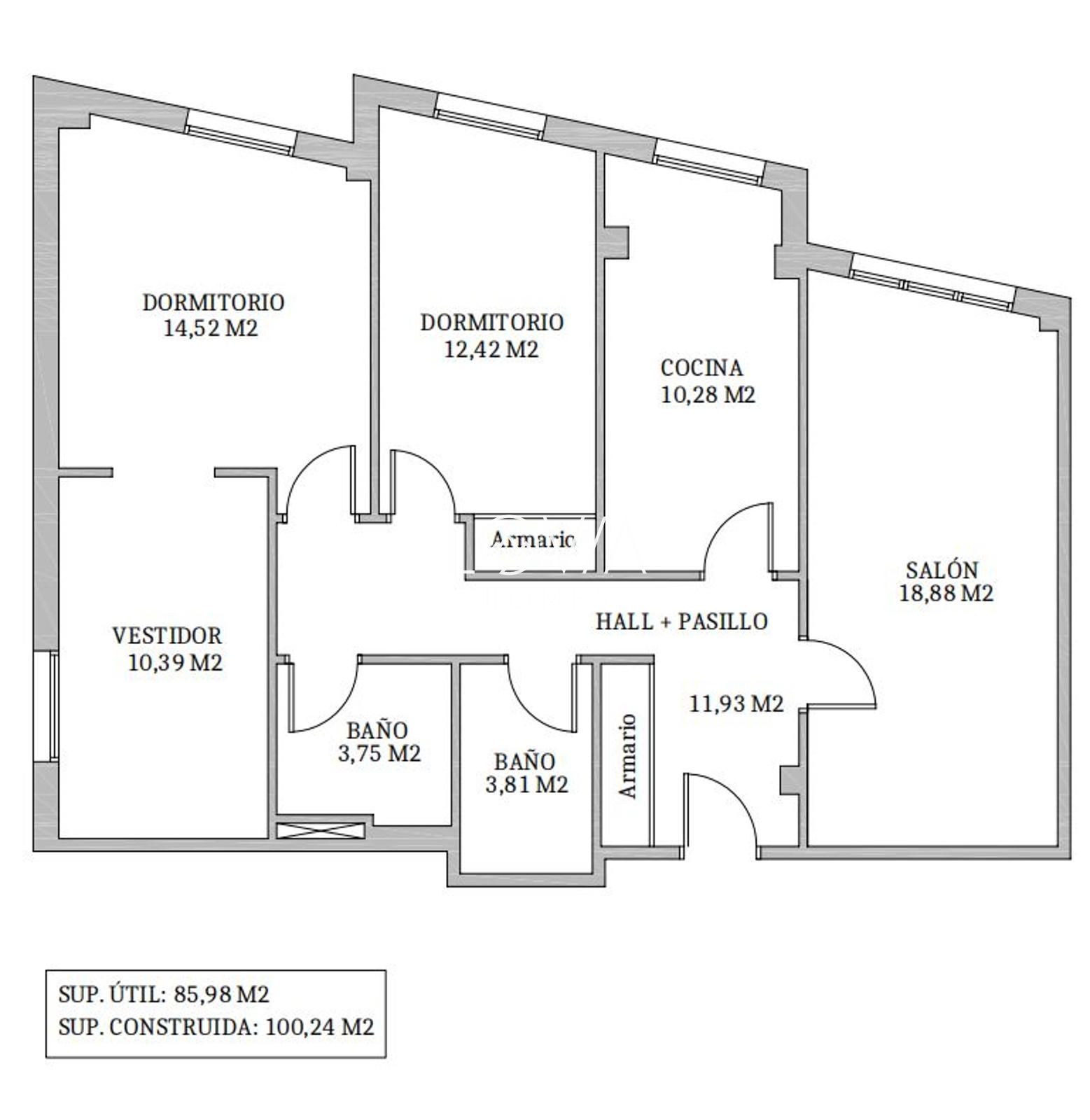
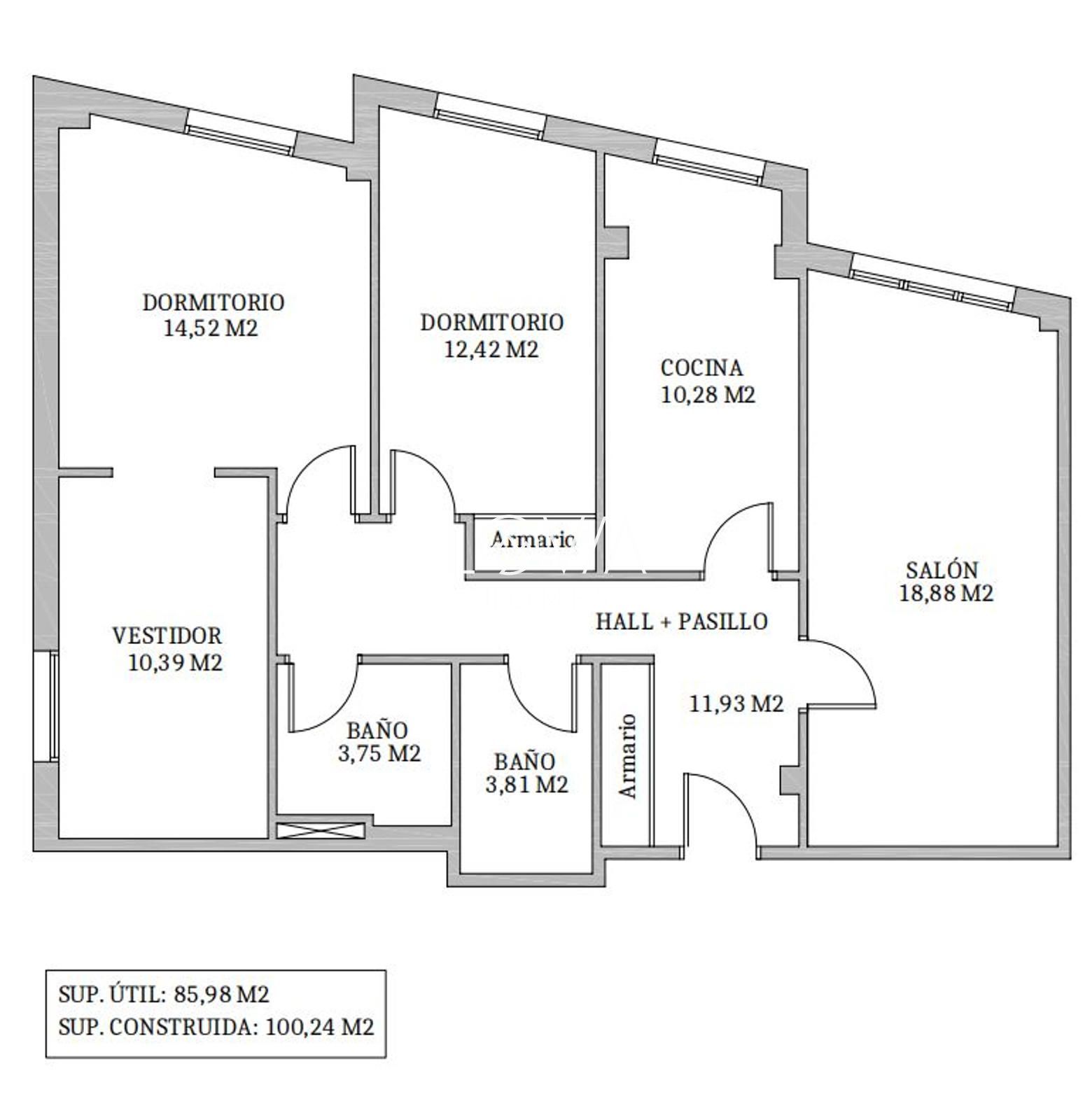
LOVIA HOME comercializa este piso amueblado en Cornellana, una oportunidad ideal para quienes buscan una segunda residencia en Asturias, combinando tranquilidad, comodidad y una excelente ubicación. La vivienda cuenta actualmente con dos dormitorios, uno de ellos con un amplio vestidor que en su día fue una habitación independiente y que puede volver a convertirse fácilmente en un tercer dormitorio, adaptándose a las necesidades de cada familia o etapa de la vida.

Dispone de una cocina funcional, un salón luminoso y confortable, perfecto para el descanso tras una jornada de playa o montaña, y dos baños, lo que aporta comodidad tanto para estancias cortas como prolongadas. La propiedad se completa con plaza de garaje y un trastero de 14 m², un espacio amplio y muy práctico para guardar bicicletas, material deportivo o enseres propios de una vivienda vacacional.

Ubicado en una zona tranquila, Cornellana destaca por su excelente conexión con las principales ciudades asturianas: Oviedo 30 minutos, Gijón 40 minutos y Avilés 30 minutos, bien comunicado por transporte público, lo que permite disfrutar tanto del ambiente urbano como de la calma del entorno rural. Además, el aeropuerto de Asturias está a 25 minutos, facilitando los desplazamientos desde cualquier punto de España o del extranjero.

Las playas del centro y occidente asturiano, así como paisajes naturales de gran valor, están fácilmente accesibles, convirtiendo este piso en una base perfecta para escapadas frecuentes. Una vivienda versátil y bien situada para disfrutar de Asturias todo el año.


Características
Precio Venta 125.000 €
Precio/m² 1.263
Año de construcción 2007
Construidos 99 m2
Útiles 86 m2
Dormitorios 3
Baños 2
Amueblado
Cocina Amueblada
Calefacción Electrica
Trastero
Altura/Planta 3
Estado Entrar a vivir
Ascensor
Garaje
Calificación Energética (E) VER
Escalas de eficiencia


Eficiencia Emisiones: 41,00
Eficiencia Consumo: 242,00
242
41

Contáctanos

Si deseas más información sobre esta propiedad, por favor, rellena el formulario.

 Sí, he leído y/o acepto las Condiciones de uso y la Política de privacidad
Inmuebles similares:
 
125.000 €
Ref. 3100  85 m2  3  2
Piso en venta en Mieres, con 85 m2, 3 habitaciones y 2 baños, Trastero y Ascensor.
 
111.500 €
Ref. 2937  118 m2  1  1
BARRIO REQUEJADA, POLANCO, ALQUILADO