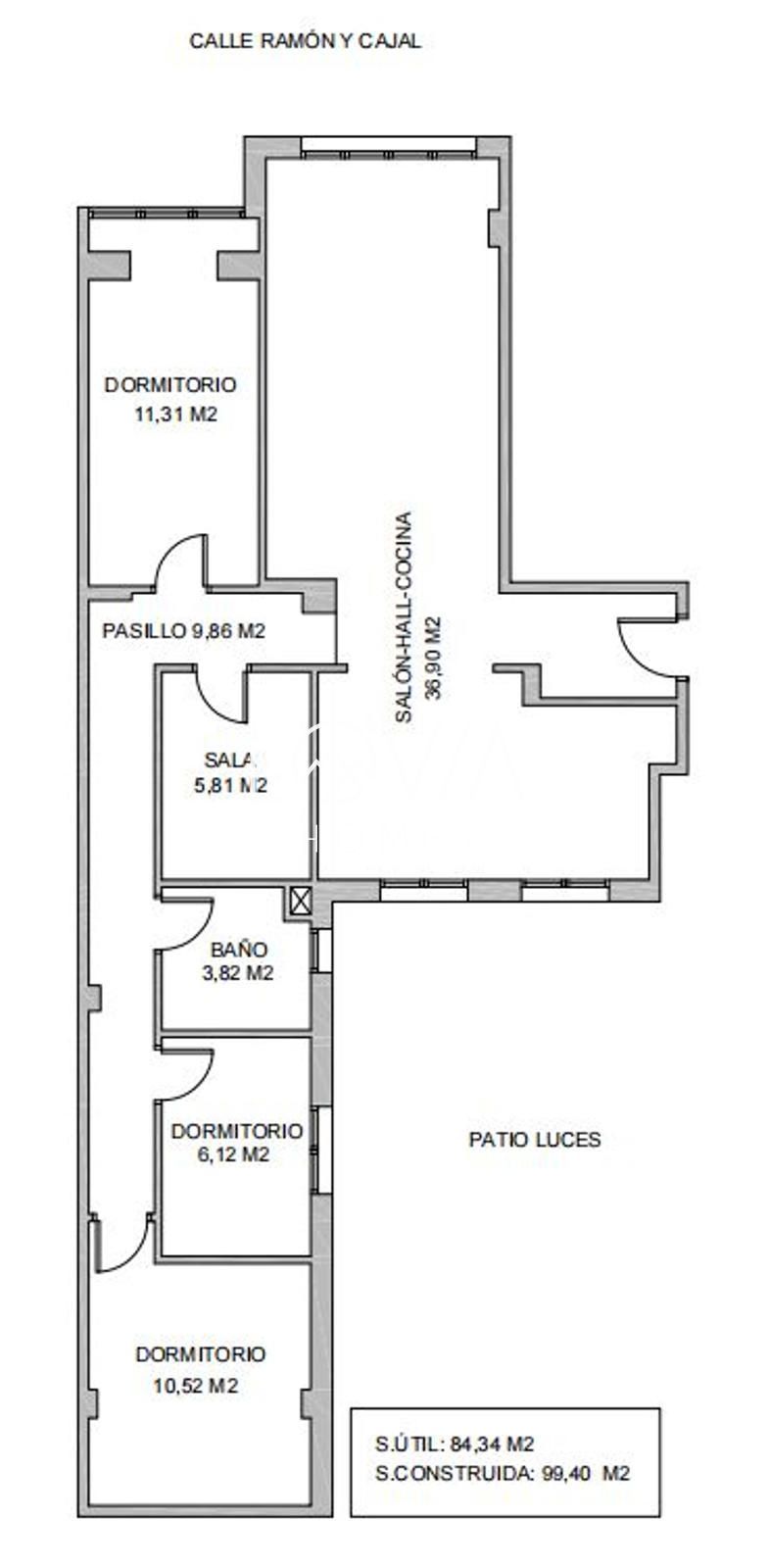
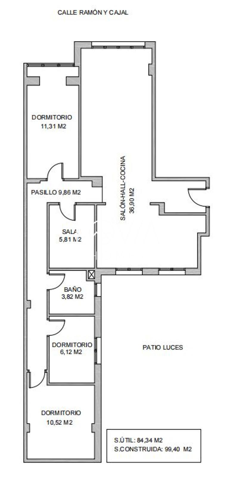
Piso en planta primera situado en la calle Ramón y Cajal nº 7, en el municipio de Avilés, en una zona céntrica y consolidada con todos los servicios a pie de calle (comercios, centros educativos, transporte público y zonas verdes).
La vivienda cuenta con una superficie útil de 84,34 m², distribuida de forma funcional en: Tres dormitorios, un baño completo con plato de ducha, salón-comedor amplio y cocina independiente.
El edificio dispone de portal sin barreras arquitectónicas, lo que facilita el acceso a personas con movilidad reducida, carritos o bicicletas. La propiedad se encuentra para reforma ligera, ideal para actualizar acabados, carpinterías e instalaciones, permitiendo personalizar los espacios según las necesidades del comprador. Por su distribución y metros, ofrece múltiples posibilidades de redistribución interior para optimizar zonas de día y de descanso.
Una excelente oportunidad tanto como vivienda habitual como para inversión, en una de las calles más conocidas de la localidad.